$0.00
( )
 $0 est/mo Sourced by Back At You

4452 64 Avenue,Calgary, AB T2B2B3

Calgary, AB T2B2B3

Share:

Description

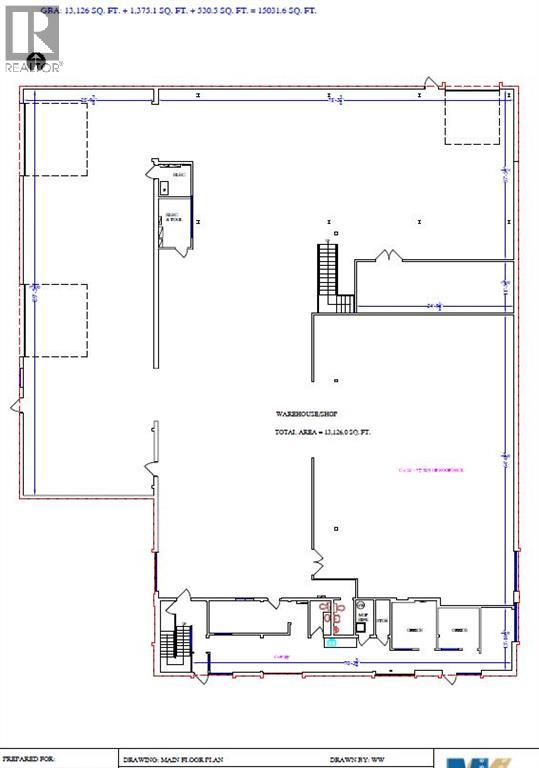
Rare opportunity to lease out a detached building (13,126 SF) situated on 2.79 Acres of land. This building has over 1 Acre+ of secured, fenced off yard/compound! High ceilings with two large overhead doors that open up to the secured compound. Inside offers 600 Amp, 600 Volt, 3 phase power, and large Make Up Air Unit to work on your fleet of vehicles. Rear shop space has a 530 SF mezzanine on top of the work/staff room across from the third Drive in door, along with multiple suspended gas heated rear heaters at various points. There is a 1 Tonne Jib Crane, and a 3 tonne Overhead Crane currently in place, that the new tenant may PURCHASE off the existing tenant or can be removed if not required. Multiple offices in the front space with washroom (one in the rear shop space), and a second floor office area (1,375SF) with bathroom which is perfect for accounting or management office. Ample parking with 9 stalls at the front of the building and even more at the side of the building and lots of street parking. This building is able to be demise able into two units (8,060/5,066 SF) as there are two separate front entry doors. Close to 52nd Street, Barlow and other access roads. Landlord incentives available depending on length of lease signed/negotiated. (id:374)

Details

MLS #A2230726
Listing TypeFor Lease
StatusActive
Year1977
Days On Site150
Listing Provided ByCentury 21 Bravo Realty | Jim Lee

Features

SQ Feet13,126
Acreage2.79

Area Information

ProvinceAB
CityCalgary
Postal CodeT2B2B3
Community NameFoothills
Sourced by Back At You

Request a showing

Request a showing

Loading Form
The information is being provided by CREA. Information deemed accurate but not guaranteed. Information is provided for consumers personal, non-commercial use, and may not be used for any purpose other than the identification of potential properties for purchase. Copyright 2025 CREA. All Rights Reserved.

Contact

Learn More About This Property

ProvinceAB
CityCalgary
Postal CodeT2B2B3
Community NameFoothills
Sourced by Back At You
Listing Updated: November 5, 2025 at 3:12:45 PM PST